
| Hạng mục | Thông tin |
|---|---|
| Loại hình: | Nhà cấp 4 – mái Thái hiện đại |
| Chủ đầu tư: | Anh Viên |
| Địa điểm thi công: | Sóc Trăng |
| Đơn vị thiết kế & thi công: |
Xây Dựng Cường Gia Hiếu |
| Hồ sơ thiết kế phát hành: | 02/08/2025 |
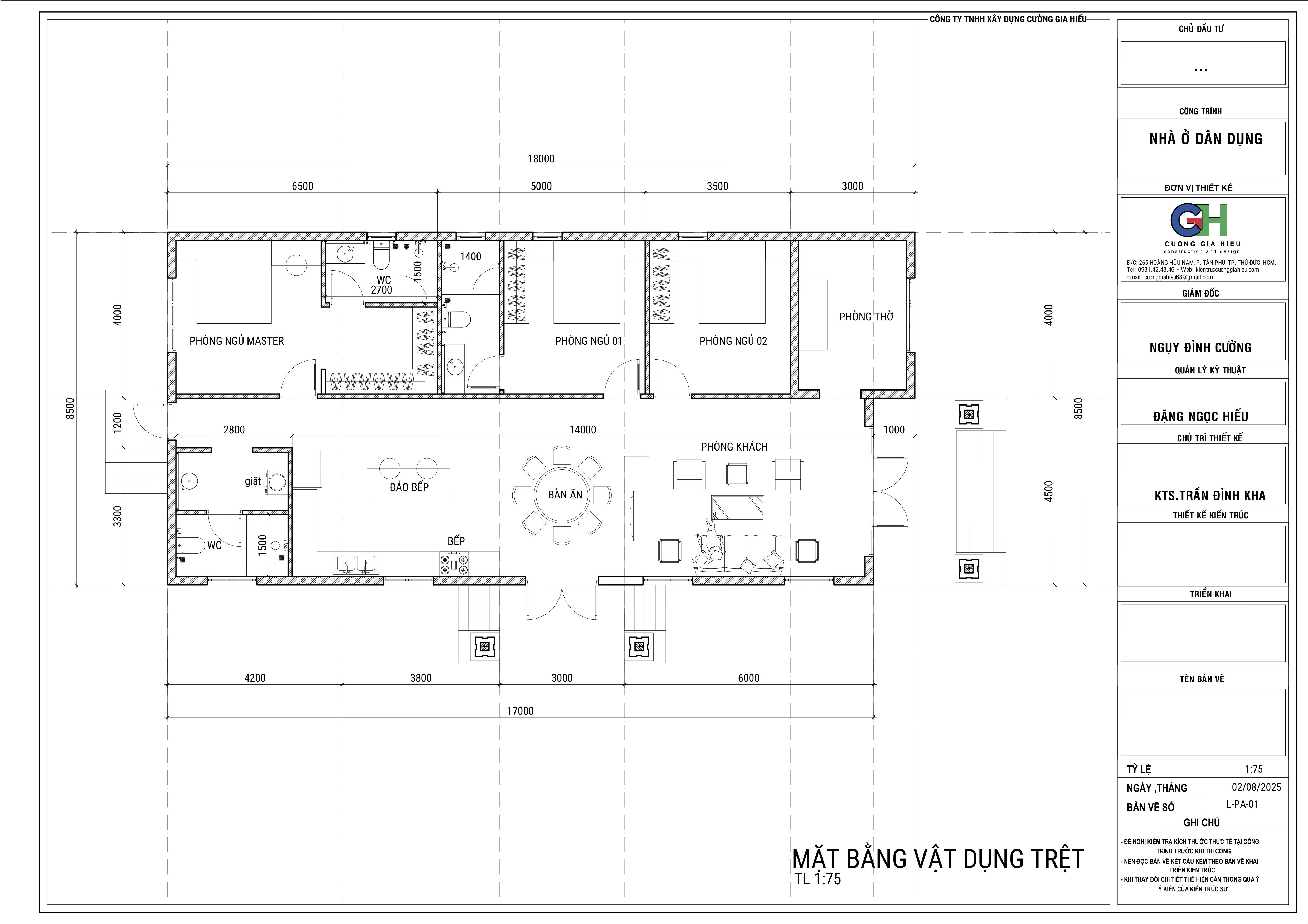
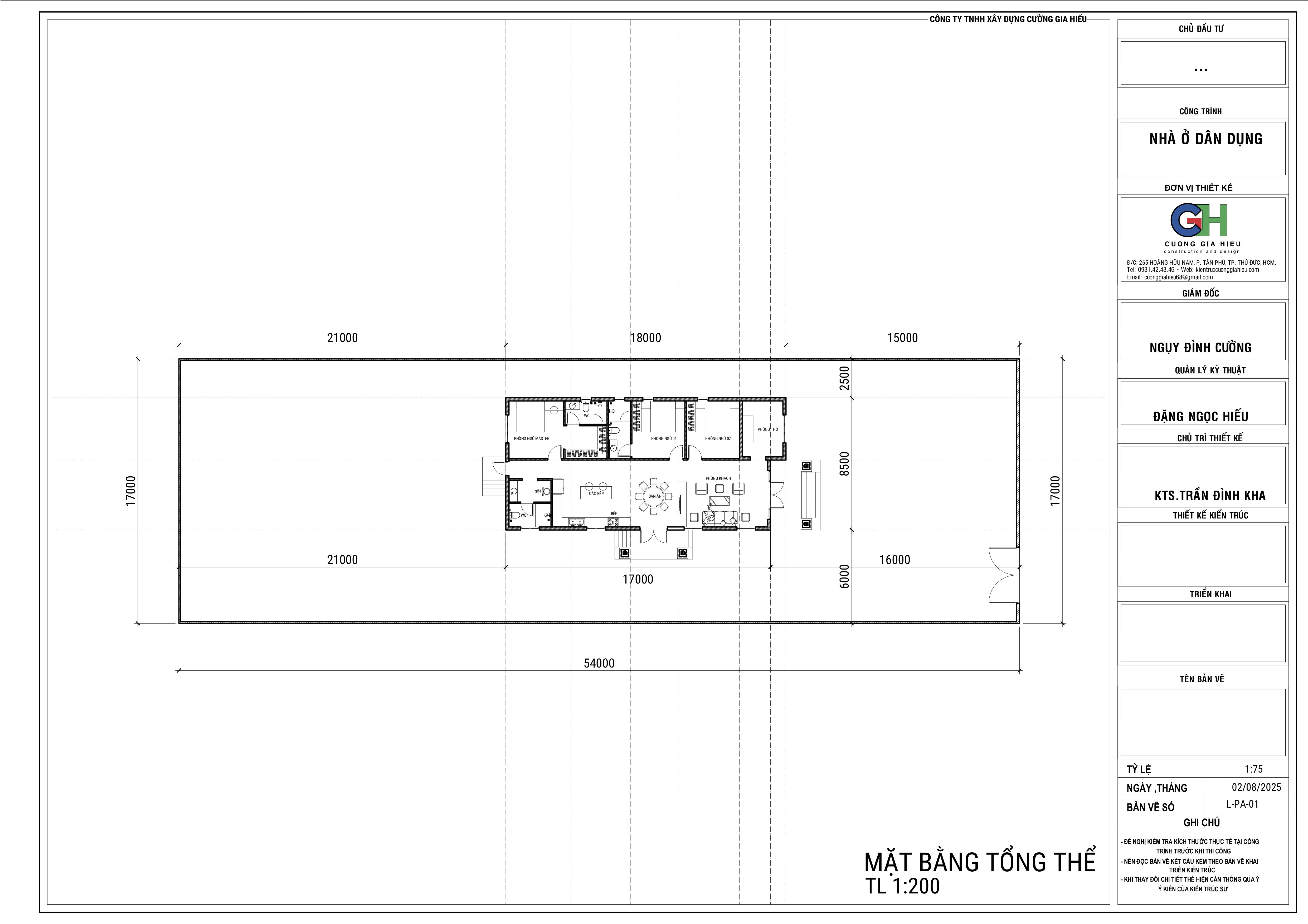
| Kích thước xây dựng: | 8.5m x 18m |
| Diện tích sử dụng: | ~153m² (1 tầng) |
| Công năng: |
3 phòng ngủ – 1 khách – 1 bếp + đảo – 1 thờ – 2 WC – 1 giặt phơi |
| Thời gian thi công: | 4–5 tháng (tùy tiến độ và thời tiết) |
Công trình nhà mái Thái này được xây dựng theo lối kiến trúc hiện đại, ưu tiên mặt tiền thoáng, vật liệu bền – đẹp – dễ bảo trì, phù hợp thói quen sinh hoạt của gia đình miền Tây.
Công trình nổi bật với:
1. Mái Thái giật cấp chống nóng – chống thấm hiệu quả
2. Mặt tiền thoáng 8.5m kết hợp sảnh hiên, bậc tam cấp đá
3. Hệ cửa nhôm kính Xingfa lấy sáng – tối ưu không gian mở
4. Tường ốp gạch trang trí bắt sáng – hạn chế bám bẩn
5. Sơn trắng kết hợp ngói xanh than – tạo cảm giác thanh lịch, hiện đại
Thiết kế phù hợp với xu hướng xây dựng nhà 1 tầng nhưng đầy đủ tiện nghi, khối nhà vuông vức, dễ thi công, tối ưu chi phí.
Nhà cấp 4 được chia làm 3 không gian chính: khu khách – khu bếp – khu ngủ, đảm bảo luồng di chuyển mạch lạc.
| Khu vực | Mô tả |
|---|---|
| Phòng khách |
Ngay cửa chính liên thông phòng thờ |
| Phòng bếp – đảo – bàn ăn |
Giữa nhà – thoáng gió dễ kết nối sinh hoạt |
| Phòng ngủ Master | Có WC riêng – view sân sau |
| Phòng ngủ 01, 02 | Liền kề – có cửa sổ |
| Phòng thờ |
Ngay phía trước, hướng phong thủy tốt |
| 2 WC | Bố trí cuối nhà – tiện sinh hoạt |
| Khu giặt – sân sau | Hơi lùi về sau, thoáng và sạch |
Công năng phù hợp gia đình 3–5 người, có người cao tuổi hoặc trẻ nhỏ.
| Hạng mục | Thông tin |
|---|---|
| Diện tích xây dựng: | 8.5m x 18m (153m²) |
| Loại mái: | Mái ngói Thái – màu xanh than |
| Kết cấu: | Bê tông cốt thép tiêu chuẩn |
| Vật liệu tường: | Gạch không nung / gạch đặc |
| Cửa: | Nhôm Xingfa – kính cường lực |
| Sàn: | Gạch porcelain cao cấp (60×60cm) |
| Tiêu chuẩn hoàn thiện: | Đạt chuẩn Cường Gia Hiếu 2025 |
| Giai đoạn | Thời gian | Công việc |
|---|---|---|
| 1. Xin phép – khảo sát | 1–2 tuần | Hồ sơ pháp lý – định vị móng |
| 2. Thi công móng – đà kiềng | 2–3 tuần | Đổ móng, xây chân tường |
| 3. Xây thô | 4–5 tuần | Dựng cột, xây tường, đổ sàn |
| 4. Lợp mái | 1–2 tuần | Lắp khung – lợp ngói – PU cách nhiệt |
| 5. Hoàn thiện (MEP + ốp lát) | 4–5 tuần | Điện nước âm, gạch, sơn, cửa |
| 6. Bàn giao | 1 tuần | Lắp thiết bị – vệ sinh – nghiệm thu |
Chi phí thi công phụ thuộc vào:
1. Hồ sơ thiết kế cụ thể
2. Mức hoàn thiện vật tư
3. Điều kiện mặt bằng, nền đất
4. Thời điểm ký hợp đồng
Trung bình, đơn giá thi công trọn gói hoàn thiện nhà cấp 4 mái Thái sẽ dao động từ:
5.200.000 – 6.500.000đ/m² (tùy vật tư và yêu cầu hoàn thiện)
Để biết chi tiết dự toán thực tế theo đúng nhu cầu và bản vẽ, hãy liên hệ trực tiếp để nhận báo giá chi tiết trong 24h.
1. Tư vấn phương án – báo giá sơ bộ
2. Khảo sát thực tế – ký hợp đồng thiết kế
3. Lập hồ sơ dự toán chi tiết
4. Ký hợp đồng thi công – cam kết tiến độ
5. Thi công – giám sát kỹ thuật 24/7
6. Bàn giao – bảo hành – bảo trì
1. Đơn vị chuyên thi công nhà mái Thái, nhà vườn, nhà phố ...biệt thự.
2. Hỗ trợ trọn gói từ thiết kế đến hoàn thiện
3. Cam kết không phát sinh chi phí
4. Bảo hành kết cấu 5 năm – hoàn thiện 2 năm
5. Quy trình chuyên nghiệp, hồ sơ pháp lý đầy đủ
Hotline/Zalo: 0931.42.43.46
Văn phòng: 265 Hoàng Hữu Nam, P. Tăng Nhơn Phú, TP. Thủ Đức, TPHCM
Công Ty TNHH Xây Dựng Cường Gia Hiếu
Website: https://xaydungcuonggiahieu.com/
Tư vấn miễn phí – nhận bảng dự toán PDF trong 24 giờ – hỗ trợ xin phép xây dựng