THÔNG TIN CÔNG TRÌNH
Mẫu nhà: Biệt thự mái thái tân cổ điển
Chủ đầu tư: anh Tín
Địa điểm: Bến Tre
Quy mô: 2 tầng
Diện tích xây dựng: 12x13m
Công năng: Phòng khách, 1 phòng thờ, 1 phòng bếp + ăn, 1 karaoke, 3 WC
Đơn vị thi công: Công ty TNHH Xây Dựng Cường Gia Hiếu
Năm thực hiện: 2025
Bạn đang tìm kiếm một công trình kiến trúc vượt thời gian, kết hợp giữa sự sang trọng cổ điển và nét tinh tế hiện đại? Mẫu biệt thự tân cổ điển mái Thái dưới đây chính là câu trả lời hoàn hảo. Ngôi nhà này không chỉ là một không gian sống mà còn là biểu tượng của sự đẳng cấp và gu thẩm mỹ tinh tế của gia chủ. Hãy cùng khám phá chi tiết về phối cảnh và mặt bằng công năng của công trình này.
Phối Cảnh Ngoại Thất: Vẻ Đẹp Hiện Đại, Sang Trọng
Ngay từ cái nhìn đầu tiên, mẫu biệt thự tân cổ điển này đã gây ấn tượng mạnh mẽ nhờ vào vẻ đẹp lộng lẫy và bề thế. Đây là phong cách kiến trúc đang rất được ưa chuộng, bởi nó dung hòa được nét cổ kính, tinh tế với sự phóng khoáng, tiện nghi của kiến trúc hiện đại.
Mái Thái màu xanh nổi bật trên nền sơn trắng chủ đạo, tạo nên một tổng thể hài hòa và bắt mắt. Hệ thống cửa sổ vòm lớn không chỉ mang lại ánh sáng tự nhiên mà còn tạo điểm nhấn kiến trúc độc đáo. Các cột trụ lớn được thiết kế rất tỉ mỉ, giúp nâng đỡ hệ thống mái và ban công, tạo sự chắc chắn và sang trọng.
Tổng thể ngôi nhà được xây dựng với tông màu trắng chủ đạo, làm nổi bật các chi tiết phào chỉ và hoa văn trang trí tinh xảo. Cổng chính và hàng rào được thiết kế cầu kỳ, không chỉ đảm bảo an ninh mà còn làm tăng thêm vẻ kiêu sa, lộng lẫy cho toàn bộ công trình.
.png)
.png)
Hình phối cảnh biệt thự Tân Cổ Điển mái thái
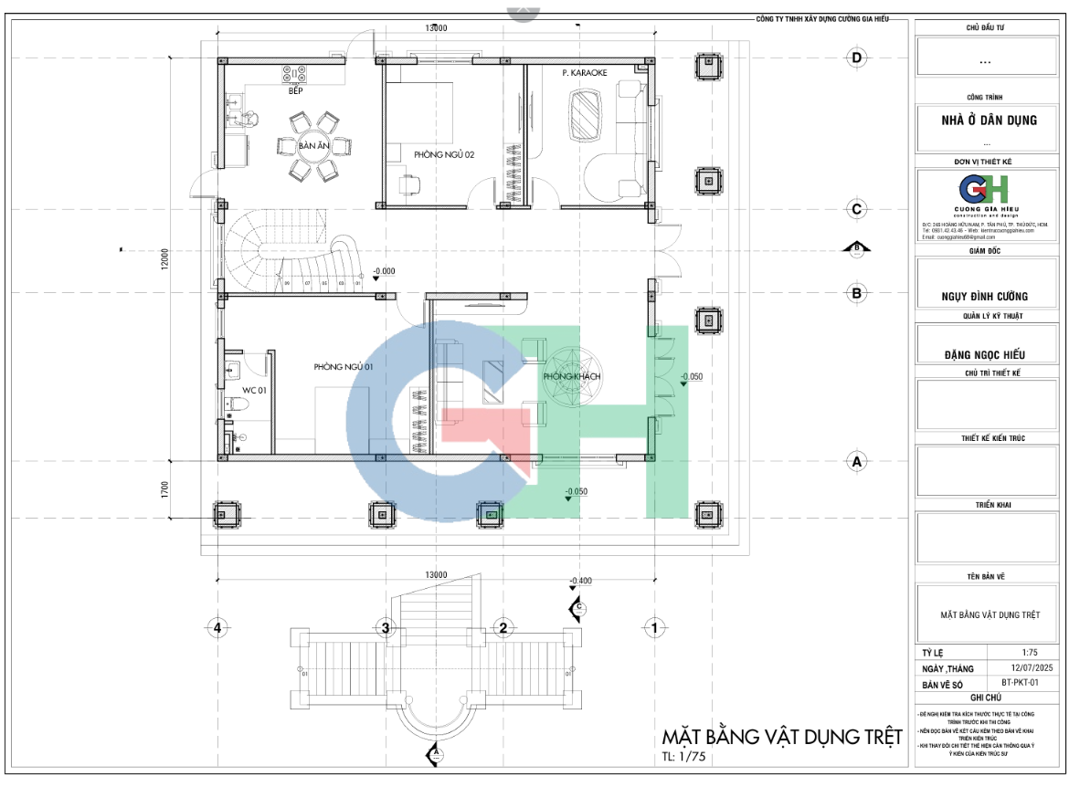
Với diện tích ~440m2 mặt bằng công năng được Cường Gia Hiếu thiết kế dựa trên tiêu chí tiện lợi và tối ưu được công năng. Mặt bằng công năng được chia thành các khu vực: phòng khách, 1 phòng thờ, 1 phòng bếp + ăn, 1 karaoke, 3 WC
(4).png)
.png)
Hình ảnh mặt bằng công năng diện tích
Hình ảnh thi công
.png)
.png)
Hình ảnh thi công biệt thự Tân Cổ Điển mái thái
Kiến trúc không chỉ là xây dựng mà còn là tạo ra một không gian sống đầy cảm hứng. Với mẫu biệt thự tân cổ điển mái Thái này, sự kết hợp giữa vẻ đẹp ngoại thất sang trọng và mặt bằng công năng tối ưu, đây xứng đáng là lựa chọn hàng đầu cho những gia đình muốn sở hữu một tổ ấm hoàn hảo. Nó không chỉ đáp ứng mọi nhu cầu sinh hoạt mà còn thể hiện được phong cách sống đẳng cấp của gia chủ.
Nếu bạn đang lên kế hoạch xây dựng nhà, hãy tham khảo mẫu thiết kế này và liên hệ ngay để được các kiến trúc sư chuyên nghiệp biến ước mơ về một ngôi nhà lý tưởng thành hiện thực nhé!
Hotline/Zalo: 0931.424.346 – 0974.990.306
Email: cuonggiahieu68@gmail.com
Facebook: www.facebook.com/xdcuonggiahieu/