THÔNG TIN CÔNG TRÌNH
Mẫu nhà: Nhà phố
Chủ đầu tư: anh Thông
Địa điểm: Thủ Đức
Quy mô: 1 trệt + 2 lầu + sân thượng
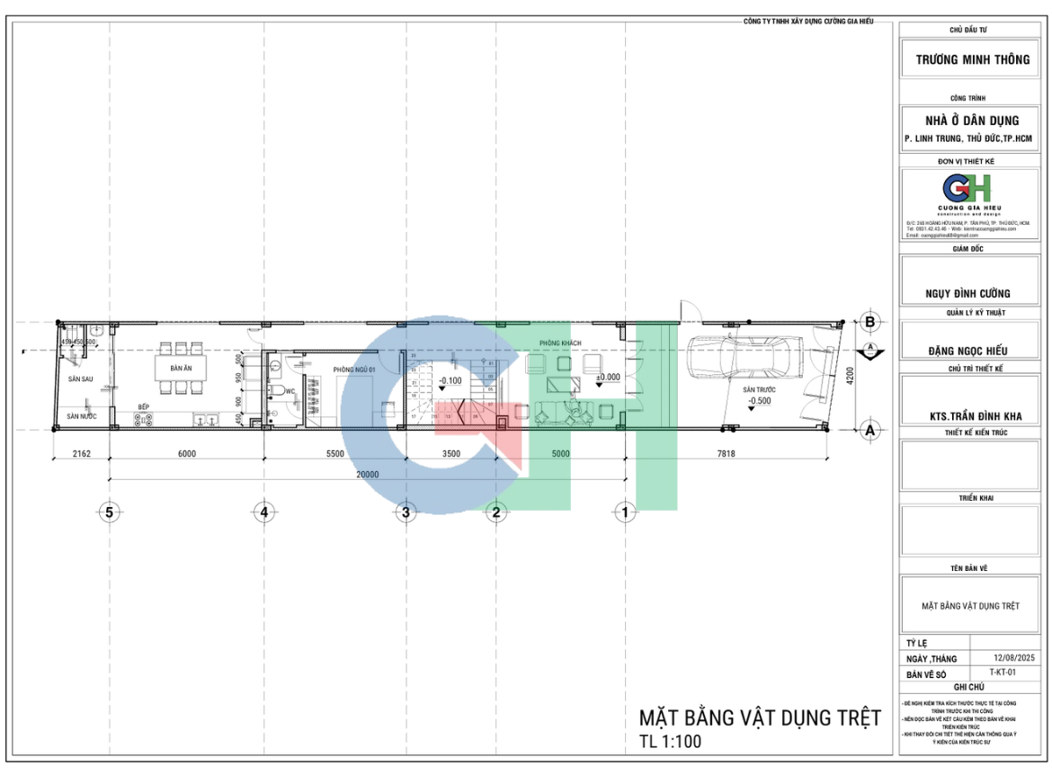
Diện tích xây dựng: 4,2x20m
Công năng: Phòng khách, sân trước, sân sau, 06 WC, 05 phòng ngủ, 1 bếp + ăn, 1 phòng thờ, sân phơi, kho
Phụ trách thiết kế: KTS Trần Đình Kha
Đơn vị thi công: Công ty TNHH Xây Dựng Cường Gia Hiếu
Năm thực hiện: 2025
Bạn đang tìm kiếm một ngôi nhà phố hiện đại, tiện nghi lại vừa tối ưu công năng sử dụng trên diện tích khiêm tốn? Mẫu nhà phố hiện đại dưới đây chính là câu trả lời hoàn hảo cho bạn. Với sự kết hợp tinh tế giữa kiến trúc ngoại thất và bố trí mặt bằng công năng khoa học, ngôi nhà này không chỉ là không gian sống mà còn là một tác phẩm nghệ thuật. Hãy cùng khám phá chi tiết về phối cảnh và mặt bằng của ngôi nhà tuyệt vời này!
Ngay từ cái nhìn đầu tiên, mẫu nhà phố hiện đại này đã gây ấn tượng mạnh mẽ nhờ vào vẻ đẹp hiện đại, thanh lịch. Tông màu trắng chủ đạo kết hợp với các đường nét kiến trúc đơn giản, tinh tế tạo cảm giác nhẹ nhàng, sang trọng. Cửa sổ và ban công được thiết kế tối giản, tận dụng tối đa ánh sáng tự nhiên và gió trời, mang lại không gian sống thoáng đãng.
Mặt tiền ngôi nhà được ốp đá hoa cương làm nổi bật vẻ đẹp sang trọng và đẳng cấp. Ban công được trang trí thêm cây xanh tạo mảng màu xanh mát, điểm nhấn cho tổng thể kiến trúc.
.png)
.png)
Hình phối cảnh nhà phố hiện đại
Với diện tích mặt tiền chỉ 4,2m, việc bố trí công năng hợp lý là yếu tố then chốt. Dựa trên bản vẽ, có thể thấy các không gian được phân chia vô cùng khoa học, đảm bảo sự riêng tư và tiện nghi cho các thành viên trong gia đình bao gồm: phòng khách, sân trước, sân sau, 06 WC, 05 phòng ngủ, 1 bếp + ăn, 1 phòng thờ, sân phơi, kho.
.png)
.png)
Hình ảnh mặt bằng công năng diện tích ~320m2
Kiến trúc không chỉ là xây dựng mà còn là tạo ra một không gian sống đầy cảm hứng. Với mẫu nhà phố hiện đại này, sự kết hợp giữa vẻ đẹp ngoại thất sang trọng và mặt bằng công năng tối ưu, đây xứng đáng là lựa chọn hàng đầu cho những gia đình muốn sở hữu một tổ ấm hoàn hảo. Nó không chỉ đáp ứng mọi nhu cầu sinh hoạt mà còn thể hiện được phong cách sống đẳng cấp của gia chủ.
Nếu bạn đang lên kế hoạch xây dựng nhà, hãy tham khảo mẫu thiết kế này và liên hệ ngay để được các kiến trúc sư chuyên nghiệp biến ước mơ về một ngôi nhà lý tưởng thành hiện thực nhé!
Hotline/Zalo: 0931.424.346 – 0974.990.306
Email: cuonggiahieu68@gmail.com
Facebook: www.facebook.com/xdcuonggiahieu/