THÔNG TIN CÔNG TRÌNH
Mẫu nhà: Nhà cấp 4 mái Thái
Chủ đầu tư: anh Minh
Địa điểm: Long An
Diện tích xây dựng: 8x18m
Công năng: Phòng khách, phòng bếp + ăn, 02 Phòng ngủ, phòng thờ, 02 WC
Phụ trách thiết kế: KTS Trần Đình Kha
Đơn vị thi công: Công ty TNHH Xây Dựng Cường Gia Hiếu
Năm thực hiện: 2025
.png)
Hình phối cảnh nhà vườn mái Thái
Nhìn trực diện vào mặt tiền, nhà vườn mái Thái hiện lên với vẻ đẹp sang trọng, thanh lịch với mái Thái màu xanh than nổi bật trên nền sơn trắng. Tông màu trắng tinh khôi được sử dụng làm gam màu chủ đạo, làm nền hoàn hảo để tôn lên vẻ đẹp của hệ mái và các chi tiết trang trí khác.
.png)
Hình phối cảnh nhà vườn mái Thái
Sảnh chính của ngôi nhà được thiết kế vô cùng ấn tượng với mái vòm bán nguyệt, được nâng đỡ bởi hai trụ cột lớn. Hai trụ cột này không chỉ có tác dụng nâng đỡ mà còn là điểm nhấn kiến trúc, mang đến cảm giác vững chãi và bề thế. Đèn chùm cổ điển treo ở giữa mái vòm sảnh chính càng làm ngôi nhà trở nên lung linh và ấm áp hơn vào ban đêm.
Tổng thể ngôi nhà được xây dựng với tông màu trắng chủ đạo, làm nổi bật các chi tiết phào chỉ và hoa văn trang trí tinh xảo. Sân vườn được lát gạch phẳng phiu, sạch sẽ và được bố trí hệ thống đèn chiếu sáng âm sàn, giúp ngôi nhà trở nên lung linh hơn vào ban đêm.
>>>Nếu bạn đang lên kế hoạch xây dựng nhà, hãy tham khảo thêm các mẫu nhà vườn mái Thái để có thêm nhiều lựa chọn cho tổ ấm của mình.
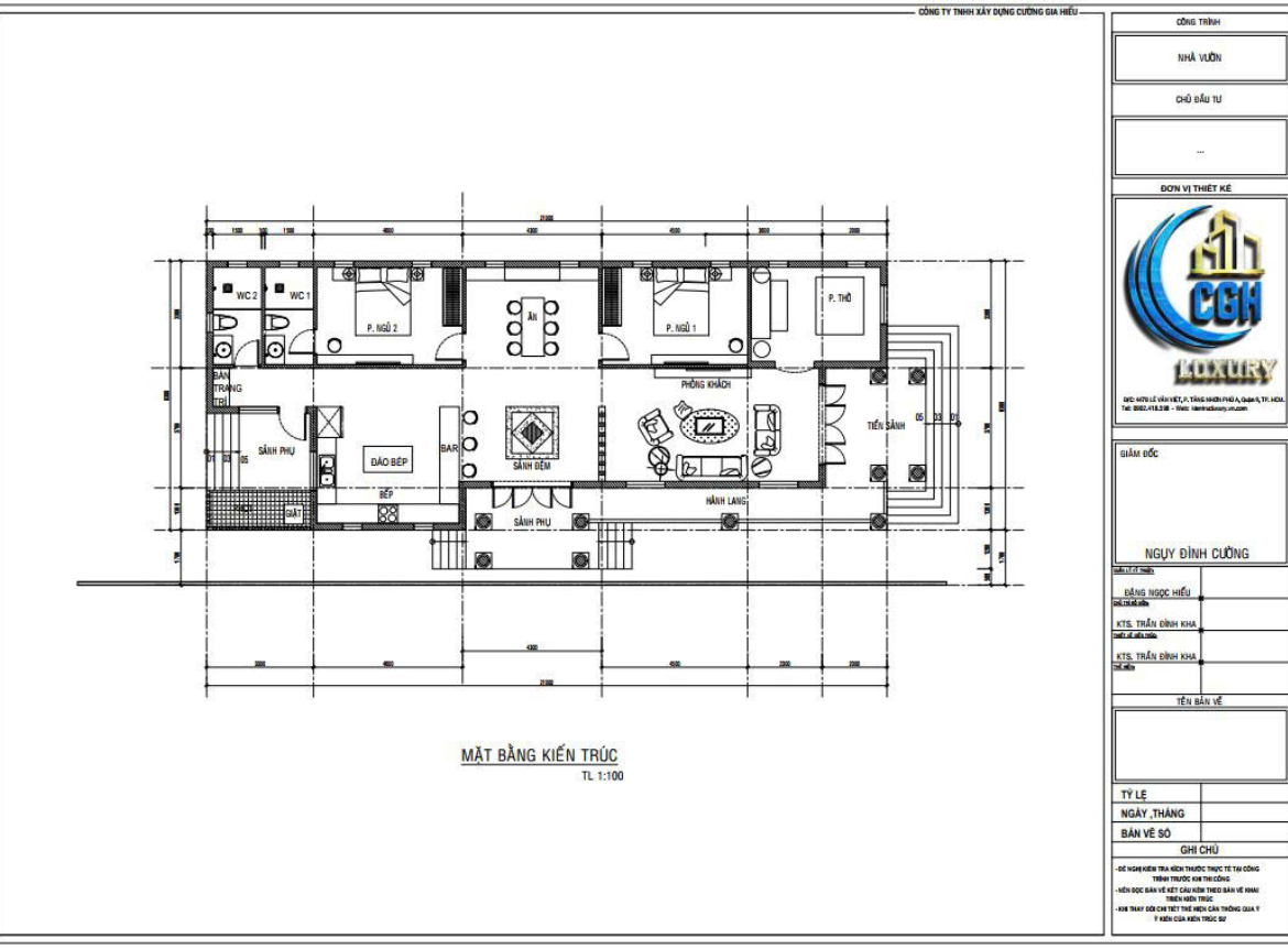
Với diện tích 240m2 mặt bằng công năng được Cường Gia Hiếu thiết kế dựa trên tiêu chí tiện lợi và tối ưu được công năng. Mặt bằng công năng được chia thành các khu vực: phòng khách, phòng bếp + ăn, 02 Phòng ngủ, phòng thờ, 02 WC
.png)
Hình ảnh mặt bằng công năng nhà vườn mái Thái
Phòng Khách: Đặt ngay sau sảnh chính, tạo không gian rộng rãi để tiếp đón khách và sinh hoạt chung.
Phòng Bếp & Ăn: Nằm liền kề phòng khách, khu vực này có đầy đủ tiện nghi, được thiết kế khoa học, giúp việc nấu nướng trở nên thuận tiện hơn. Một bàn ăn lớn được đặt ở trung tâm, là nơi cả gia đình quây quần bên những bữa cơm ấm cúng.
Phòng Ngủ: Ngôi nhà có tổng cộng 3 phòng ngủ, được sắp xếp hợp lý để đảm bảo sự riêng tư và yên tĩnh cho từng thành viên.
Phòng Thờ: Đặt ở vị trí trang trọng, riêng biệt, phù hợp với văn hóa truyền thống của người Việt.
Sảnh Đệm: Tạo không gian chuyển tiếp giữa các phòng, mang lại sự thông thoáng và linh hoạt cho ngôi nhà.
Ngoài vẻ đẹp ngoại thất, điểm mạnh lớn nhất của mẫu thiết kế này chính là sự tối ưu hóa không gian bên trong. Ngôi nhà được bố trí đầy đủ các phòng chức năng cần thiết, đáp ứng một cách trọn vẹn nhu cầu sinh hoạt của một gia đình nhiều thế hệ.
>>> Nếu bạn đang thắc mắc về chi phí xây nhà vườn mái Thái. Liên hệ ngay cho Cường Gia Hiếu để được tư vấn miễn phí.
Kiến trúc không chỉ là xây dựng mà còn là tạo ra một không gian sống đầy cảm hứng. Với mẫu xây nhà vườn mái Thái này, sự kết hợp giữa vẻ đẹp ngoại thất sang trọng và mặt bằng công năng tối ưu, đây xứng đáng là lựa chọn hàng đầu cho những gia đình muốn sở hữu một tổ ấm hoàn hảo. Nó không chỉ đáp ứng mọi nhu cầu sinh hoạt mà còn thể hiện được phong cách sống đẳng cấp của gia chủ.
Nếu bạn đang lên kế hoạch xây dựng nhà, hãy tham khảo mẫu thiết kế này và liên hệ ngay Cường Gia Hiếu để được các kiến trúc sư chuyên nghiệp để biến ước mơ về một ngôi nhà lý tưởng thành hiện thực nhé!
Hotline/Zalo: 0931.424.346 – 0974.990.306
Email: cuonggiahieu68@gmail.com
Facebook: www.facebook.com/xdcuonggiahieu/