THÔNG TIN CÔNG TRÌNH
Mẫu nhà: biệt thự hiện đại
Chủ đầu tư: anh Dũng
Địa điểm: An Giang
Quy mô: 3 tầng
Công năng: Phòng khách, phòng bếp + ăn, 04 Phòng ngủ, bếp + ăn, 03 WC, ban công trước, sân thượng
Phụ trách thiết kế: KTS Trần Đình Kha
Đơn vị thi công: Công ty TNHH Xây Dựng Cường Gia Hiếu
Năm thực hiện: 2025
Bạn đang tìm kiếm một không gian sống lý tưởng, kết hợp giữa vẻ đẹp kiến trúc tinh tế và sự tiện nghi tối đa? Mẫu biệt thự hiện đại dưới đây chính là câu trả lời hoàn hảo. Với sự kết hợp hoàn hảo giữa vẻ đẹp ngoại thất và công năng sử dụng, ngôi nhà này không chỉ là một tổ ấm mà còn là biểu tượng của sự đẳng cấp và gu thẩm mỹ của gia chủ.
.png)
Hình phối cảnh biệt thự hiện đại
.png)
Hình phối cảnh biệt thự hiện đại
Tổng thể ngôi nhà được xây dựng với tông màu trắng chủ đạo, làm nổi bật các chi tiết phào chỉ và hoa văn trang trí tinh xảo. Cổng chính và hàng rào được thiết kế cầu kỳ, không chỉ đảm bảo an ninh mà còn làm tăng thêm vẻ kiêu sa, lộng lẫy cho toàn bộ công trình.
>>>Nếu bạn đang lên kế hoạch xây dựng nhà, hãy tham khảo thêm các mẫu biệt thự hiện đại để có thêm nhiều lựa chọn cho tổ ấm của mình.
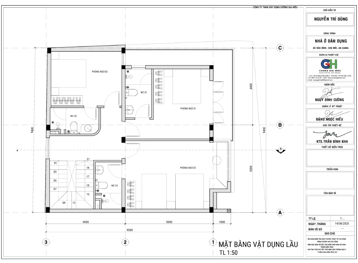
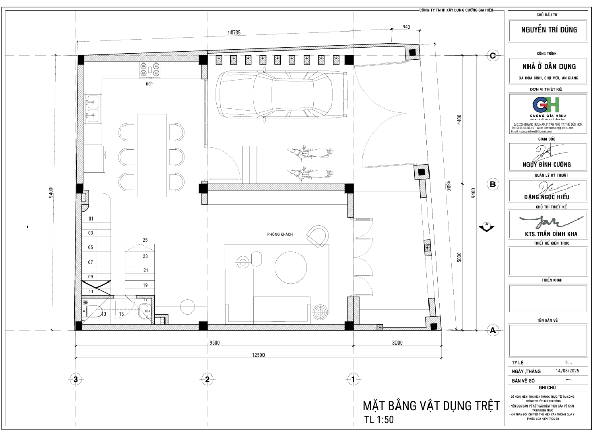
Với quy mô 2 tầng mặt bằng công năng được Cường Gia Hiếu thiết kế dựa trên tiêu chí tiện lợi và tối ưu được công năng. Mặt bằng công năng được chia thành các khu vực: phòng khách, phòng bếp + ăn, 04 Phòng ngủ, bếp + ăn, 03 WC, ban công trước, sân thượng
Hình ảnh mặt bằng công năng biệt thự hiện đại
.png)
Hình ảnh mặt bằng công năng biệt thự hiện đại
.png)
Hình ảnh mặt bằng công năng biệt thự hiện đại
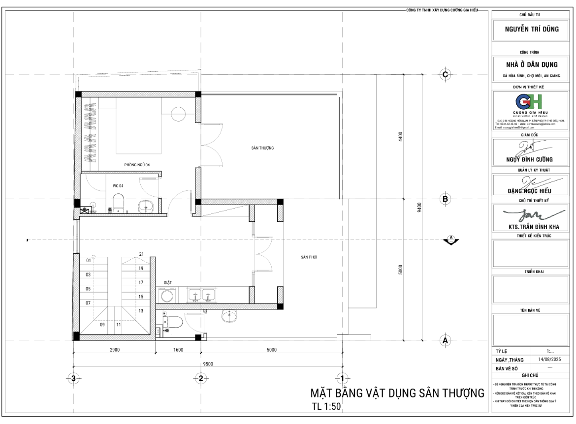
Lầu 2
Tối đa công dụng để làm thêm 1 phòng ngủ, 1 WC và có khu vực sân phơi riêng, ngoài ra còn có không gian sân thượng để làm khu vực thư giãn, trồng cây hoặc tổ chức tiệc ngoài trời.
Kiến trúc không chỉ là xây dựng mà còn là tạo ra một không gian sống đầy cảm hứng. Với mẫu biệt thự hiện đại này, sự kết hợp giữa vẻ đẹp ngoại thất sang trọng và mặt bằng công năng tối ưu, đây xứng đáng là lựa chọn hàng đầu cho những gia đình muốn sở hữu một tổ ấm hoàn hảo. Nó không chỉ đáp ứng mọi nhu cầu sinh hoạt mà còn thể hiện được phong cách sống đẳng cấp của gia chủ.
Nếu bạn đang lên kế hoạch xây dựng nhà, hãy tham khảo mẫu thiết kế này và liên hệ ngay Cường Gia Hiếu để được các kiến trúc sư chuyên nghiệp để biến ước mơ về một ngôi nhà lý tưởng thành hiện thực nhé!
Hotline/Zalo: 0931.424.346 – 0974.990.306
Email: cuonggiahieu68@gmail.com
Facebook: www.facebook.com/xdcuonggiahieu/